- Jörg Böhmfeld, Landwirtschaftskammer Rheinland-Pfalz
- Dr. Klaus Damme, Bayerische Landesanstalt für Landwirtschaft
- Christina Gaio, Kuratorium für Technik und Bauwesen in der Landwirtschaft
- Dr. Peter Hiller, Landwirtschaftskammer Niedersachsen
- Bernd Kästner, Thüringer Landesanstalt für Landwirtschaft
- Dr. Christiane Keppler, Landesbetrieb Landwirtschaft Hessen
- Jörn Menning, Landesanstalt für Landwirtschaft und Gartenbau Sachsen-Anhalt
- Antonia Nette, Landesamt für Ländliche Entwicklung, Landwirtschaft und Flurneuordnung Brandenburg
- Silke Schierhold, Landwirtschaftskammer Niedersachsen
- Dr. Stephan Schneider, Bayerische Landesanstalt für Landwirtschaft
- Dr. Sophia Schulze-Geisthövel, Landwirtschaftskammer Nordrhein-Westfalen
- Svea Sievers, Deutsche Landwirtschafts-Gesellschaft
- Gertrud Werner, Landwirtschaftskammer Rheinland-Pfalz
- Dr. Marc-Alexander Lieboldt, Landwirtschaftskammer Niedersachsen
- Jule Schättler, Landwirtschaftskammer Niedersachsen
Auf der Suche nach ganzheitlichen Stallkonzepten mit Zukunft
Wie sind Haltungssysteme zu gestalten, damit diese tierfreundlich, umweltgerecht, klimaschonend, gleichzeitig aber auch verbraucherorientiert und wettbewerbsfähig sind? Dieser nicht ganz einfachen Aufgabe widmeten und widmen sich auch aktuell noch zahlreiche Fachleute der Landesanstalten, Landesämter und Landwirtschaftskammern aus ganz Deutschland sowie weiterer Fachorganisationen wie DLG und KTBL. In der Arbeitsgruppe Geflügel sind darüber hinaus Vertreter der Stiftung Tierärztliche Hochschule, des Zentrums für angewandte Forschung und Technologie e.V. an der Hochschule für Technik und Wirtschaft Dresden, der Hochschule für Wirtschaft und Umwelt Nürtingen-Geislingen und der Thüringer Tierseuchenkasse vertreten. Seit Ende 2018 trifft sich diese Gruppe regelmäßig, um denkbare Konzepte für den „Stall der Zukunft“ für die verschiedenen Nutzungsrichtungen bzw. Produktionsstufen zu erarbeiten.
Die Arbeitsgruppe zum Geflügel beschäftigte sich im ersten Schritt mit dem anspruchsvollen Bereich der Junghennenaufzucht. Die Experten versuchen mit ihrer Arbeit aufzuzeigen, unter welchen Haltungsbedingungen und Managementfaktoren Küken und Junghennen ihre arteigenen Verhaltensweisen nahezu vollständig ausüben und gleichzeitig mit optimalen biologischen Leistungen aufgezogen werden können. Denn die Aufzucht der Küken und Junghennen legt die Grundlage für die anschließende Legehennenhaltung. Um gute biologische Leistungen und ein ausgeglichenes Tierverhalten zu erreichen, bedarf es bei der Haltung von Hennen mit intaktem Schnabel einer Optimierung des Haltungssystems und des Managements.
Unter der Prämisse einer tiergerechten und tierwohlorientierten Haltung wurden somit zwei Stallmodelle entwickelt. Voraussetzungen hierfür sieht die Arbeitsgruppe unter anderem in der geregelten Besatzdichte, der Beschäftigung der Küken ab dem ersten Tag und einer an den Bedarf der Tiere angepassten Fütterung. Damit die Junghennen ihre artgemäßen Verhaltensweisen ausüben können, müssen die Funktionsbereiche im Aufzuchtsystem klar definiert sein. Mithilfe dieser und weiterer Maßnahmen wird versucht, die Entwicklung von Federpicken und Kannibalismus in der Aufzuchtphase zu vermeiden.
zur Broschüre Gesamtbetriebliches Haltungskonzept - Junghennen
Rein Raus Verfahren in Aufzuchtvolieren mit Außenklimabereich
Junghennenaufzucht Stallmodell 1
Im Stallmodell 1 werden die Junghennen einer Altersgruppe in tierwohlgerechten Volierensystemen im „all in – all out“ Verfahren gehalten. Durch dieses System wird der Biosicherheitsstandard auf dem Aufzuchtbetrieb erhöht. Das Volierensystem bietet den Tieren genügend Raum, um ihren arteigenen Verhaltensweisen nachzukommen.
Voraufzucht im mitwachsenden System und Umstallung in Aufzuchtvoliere mit Außenklimabereich
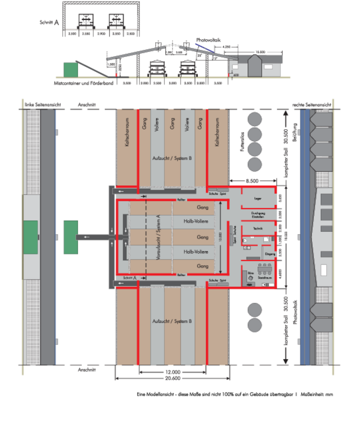
Junghennenaufzucht Stallmodell 2
Um die Anzahl der Durchgänge pro Jahr zu erhöhen, werden im Stallmodell 2 unterschiedliche Altersgruppen auf einem Betrieb gehalten. Nach der Voraufzucht werden die Tiere im Alter von sechs bzw. sieben Lebenswochen in die direkt angeschlossenen „Kaltställe“ mit Volierensystemen umgestallt. Im Voraufzuchtstall des Stallmodells 2 wächst mit zunehmendem Alter der Tiere das Aufzuchtsystem mit. In diesem Haltungssystem können die zunächst senkrecht stehenden Plateaus waagrecht gestellt werden. Diese dienen dann als zusätzliche, in der Höhe verstellbare erhöhte Ebene innerhalb des Aufzuchtsystems.
Stallkonzept
- eine Stalleinheit
- Produktionszyklus: Rein-Raus-Verfahren (1. Tag bis 18. Lebenswoche)
Innenstallbereich: zwei Außengänge: möglichst breit (je 2,0 m) + Mittelgang: möglichst breit (3 m) + 2 Volierenanlagen à 2,50 m ➞ Breite des Innenstalles: 12 m + 3,5 m Außenklimabereich je Seite + Dachüberstand (je 1,5 m)
Tierwohlaspekt: Möglichst breite Gänge für den Scharrbereich
Länge des Innenstalles abhängig von Gruppeneinheiten (analog zu TierSchNutztV):
bei 4 x 6.000 Tiere: 61 m
+ Vorraum: 6 x 20 m (inkl. Hygieneräume, Lager für Beschäftigungsmaterial etc., Stalltechnik, Sozialbereich)
+ innenliegende Gänge
➞ Stalllänge: 67 m
Tierwohlaspekt: Möglichst kleine Gruppen mit Sicht- und Berührungsschutz; verringerte Besatzdichte
- Umsetzbarkeit auch in Altgebäuden gegeben
Inneneinrichtung:
- Volierenanlage (aufgeständert) mit Aufstiegshilfen und/oder versetzten Balkonen
Vorteile:
- höhere Biosicherheit durch Rein-Raus-Verfahren
Zusatzeinrichtungen für das Tierwohl, u.a.:
- natürlicher Tageslichteinfall in den Stall
- Stressminimierung beim Umgang mit den Tieren während des Impfvorgangs durch Errichtung von Fangmöglichkeiten
- Zusätzliche Scharrfläche, Tageslicht, Frischluft, Klimareize, Gewöhnung an Außenbereich und Störungen durch Außenklimabereich
Stallkonzept
- drei Stalleinheiten, zwei bis drei Altersgruppen (Umtriebsverfahren) ➞ Reinigung und Desinfektion besonders wichtig
- Produktionszyklus: 1. Lebenstag bis 6. Lebenswoche
- Aufzucht im innenliegenden Warmstall + 7. bis 18. Lebenswoche im linken / rechten (gleichzeitig oder zeitversetzt) Aufzuchtstall (Kaltstall) + 1 Woche Reinigung + Desinfektion
Ökonomischer Vorteil: Mehr Umtriebe auf vorhandener Fläche, weniger Energiekosten
- Innenstallbereich: zwei Außengänge: möglichst breit (je 2,0 Meter) + Mittelgang: möglichst breit (3 m) + 2 Volierenanlagen à 2,50 m ➞ Breite des Innenstalles: 12 m + 3,5 m Außenklimabereich je Seite + Dachüberstand (je 1,5 m)
Tierwohlaspekt: Möglichst breite Gänge für den Scharrbereich bessere Anpassung an die Bedürfnisse der Tiere in den jeweiligen Altersabschnitten
Linker / rechter Aufzuchtstall: je 30,5 m lang
+ Warmstall: 13 m lang (variabel je nach Umstallungsverfahren)
+ innenliegende Gänge
➞ Länge des Innenstalles: circa 79 m
- Einstallung der Eintagsküken über den Vorraum
- Einstallung in den Kaltstall über Rolltore zwischen Warm- und Kaltställen
- Vorgelagerter Vorraum (inkl. Lager für Beschäftigungsmaterial etc., Stalltechnik, Sozialbereich) + eine Hygieneschleuse pro Stalleinheit
- Umsetzbarkeit auch in Altgebäuden gegeben
- Querliegende Entmistungsachsen
Inneneinrichtung:
- Voraufzucht: Halbvoliere mit breitem Mittelgang und Kotband oder flexible Ebenen
- Nachaufzucht: Volierenanlage (aufgeständert) mit Aufstiegshilfen und/oder versetzten Balkonen
Vorteile:
- Mehr Durchgänge pro Jahr
- Höhere Energieeffizienz
Zusatzeinrichtungen für das Tierwohl, u.a.:
- natürlicher Tageslichteinfall in den Stall
- Stressminimierung beim Umgang mit den Tieren während des Impfvorgangs durch Errichtung von Fangmöglichkeiten
- Zusätzliche Scharrfläche, Tageslicht, Frischluft, Klimareize, Gewöhnung an Außenbereich und Störungen durch Außenklimabereich
Nach Abschluss der Junghennenbroschüre arbeitet die Arbeitsgruppe aktuell am Gesamtbetrieblichen Haltungskonzept für Legehennen. Eine Fortsetzung für Masthühner und -puten ist im Anschluss ebenfalls geplant.



